- 2月 24 週六 202414:17
[2024裝修]健康宅裝修完工案例-新店嚴公館
- 1月 30 週二 202410:13
[2024最新裝修重點] 健康宅新趨勢:全熱交換器、防摔地板、殺菌玄關、無障礙門檻、低炫光照明
- 1月 02 週四 202015:24
[室內設計作品] 俯瞰幸福的年華宅
- 1月 08 週四 201510:31
[裝潢]事親以適之樂齡屋

<莊子---如是說>之<漁父篇>裡有句話說
事親以適, 不論所以矣
- 8月 26 週二 201416:10
[裝潢] 洋溢幸福的戀家設計

家到底應該是甚麼樣子的呢?
是像電視及網路媒體上刊登的那些超乎現實的室內設計作品嗎?
其實
- 7月 30 週三 201416:59
走入梵谷星夜之凝聚感
- 4月 11 週五 201411:49
[裝潢] 歐式新古典藝術風華

若要問在眾多室內設計的風格裡永不退流行的是哪一種
毫無疑問的
- 7月 03 週三 201316:59
新現代主義---90度的生活美學

經過半年多的努力
關渡設計案終於完成交給屋主
有一點點的不捨....
這應該是我這幾年裡最喜歡的設計作品了吧!
因為屋主的生活態度
因為我的設計理念
結合成一個完整的" 家 "
我給了這個家一個主題
新現代主義---90度的生活美學
***
介紹作品之前
有些話我一定要先說:
很感謝屋主一家人的大力協助
排出一個早上的時間讓我們拍攝
留下珍貴的紀念
另外
也感謝--小雄梁彥的的專業攝影
敬業的態度讓人留下深刻印象!

***
接下來
就聊一聊整個設計的內容及理念囉
***
屋主是一位事業有成的高科技工作者
對於品質的要求有一定堅持
但非常明理
只要盡心盡力去做好每個細節
屋主都會不吝給于肯定

一開始
我就朝屋主謙恭待人的態度做為設計理念起源
90度的彎腰哲學
一如稻穗結實累累時因成熟而彎下腰來
另外
我還看見屋主對家人的用心與細心
以及其家人與屋主之間的那種幸福的生活方式
讓我將這個部分一併整合為整個設計的主題
亦即---90度的生活美學

我認為在真正住家室內設計的領域裡(樣品屋/實品屋...等例外)
不會只有設計師的狹隘美學定義
應該要加上居住者獨特的生活習性及健康訴求
都完整考量後的設計才是屋主真正需要的---生活美學

我將其分為 5 個設計主軸
***
--第1個主軸--
90度角的造型+10度角的自然光影=100度的視覺美學
一如90度彎腰哲學的理念
在空間裡
不斷透過轉折 仰角 重覆 的演繹
搭配10度角的戶外自然光線
呈現可時尚可自然的多樣變化
驀然驚見
現代主義大師Mies vander Rohe的家具名作--巴塞隆納椅
在客廳隱隱展現出風格架構的空間語彙
於是
當開啟室內的光源---時尚的現代主義

或者
關閉室內光源讓自然光線進入---自然的現代主義
陽光透入室內造成的自然光影
這在喧嚷的都會中是多麼珍貴

***
--第二個主軸--
90度c 的設計溫度(融合了屋主的用心)+10度c的真實生活痕跡=100度c的家庭氛圍
因為屋主對太太對女兒的用心
在設計時與我花了許多時間討論每個細節
色調 風格 材質...無一不與
然後
加上一家人入住後的生活痕跡
一圈咖啡杯的水漬
一個鏡面上的指印
讓家開始有了溫度

***
--第三個主軸--
90%的收納規劃+10%媽媽的細心理家=100%無壓舒適空間
屋主的太太說: 家是她的全部
喜歡整齊 喜歡乾淨 喜歡先生進到家裡舒適愉悅的樣子!
所以
收納設計很重要, 可以物物有定位
容易清潔保養很重要, 可以輕鬆讓家一塵不染
因此設計了許多隱藏式收納
讓生活一應所需藏於無形
但是
我說: 收納設計再好也只能佔90%
沒有屋主太太的細心打理就成不了100%
功勞不該歸我
要歸於細心理家的女主人

***
--第四個主軸--
90分的無毒健康環境+女兒的10分歡樂笑容=100分的安心住家
設計的美不美已經不是新現代主義的唯一內容了
極簡 簡約 少則多
是1930年代現代主義的主張
現在已經進入後現代主義的新設計方向
亦即---新現代主義
應該跳脫只論美醜與華麗的表面功夫
如何住的健康 住的安心
建材的選擇與工法的要求就成為必須下功夫的地方
所以在室內大量採用了未檢出低甲醛的建材
像是
kd木皮板-kd木地板-甲殼素-無毒合成皮革-日本珪藻土
另外在空氣品質方面
與屋主討論後採用大金壁掛式冷氣
雖然吊隱式冷氣較有大家認為的質感
但是後續產生黴菌的機會將大為增加
為健康 為安全 為清理容易
沒有理由不這麼建議屋主

***
--第5個主軸--
90個單位的環保節能+10個單位的良好生活習慣=100個單位的綠生活
節能減碳是一句耳熟能詳的話
但我們有多少地方真的做到了呢?
在這間房子裡
屋主做到了
建材選擇
遠遠超過政府標準的45%綠建材的使用
LED光源 變頻空調 定時開關 ...等等的節能設計
就連餐廳主燈
也挑選專注於研發再生材質結構力度與裝飾性創作的英國設計師
Tom Dixon的Beat Lamp造型燈
充份體現綠生活家庭的樣貌

***
綜合以上的5個設計主軸
完成了現代主義的另一種詮釋
不再只是談好不好看的層面
我們要的是
視覺美學+ 家庭氛圍+ 無壓舒適空間+ 安心住家+ 綠生活
***
除了設計理念的完整
如果沒有真實生活的痕跡
一切都只是假象的
屋主的收藏 生活的故事 一段值得紀念的印記
才是整個空間的主角
***
玄關
擺放著屋主最愛的法蘭瓷
以及
事業成就的記錄
另外
地坪上的圓形石材拼花
不對稱的出現在現代主義的溫度裡
因為那是屋主一家人起家屋的記憶
代表著最初的成家心情
也代表著家人的親倫之情
風格中的不對稱
卻是屋主最熟悉的圖騰
所以我非常認同這樣的空間存在感
於是
我特別親手做了一個卵石的方盤
放在石材地坪的左上角
將不對稱融入室內
象徵這裡是一個自然健康的空間
玄關櫃下方的懸空處
還設有紫外線殺菌燈管
讓外出歸來的室外鞋有一個消毒的機制
再放進鞋櫃中

全式的隔屏
會造成空間感的消失
因此大膽採用裂紋玻璃與懸空清玻
組合出穿透空間的造型玄關

書房的隔間牆視覺上是不存在的
三層式的展示櫃
崁入式的LED燈條
繼續呈現的是90度的生活美學
另外在上下空間加上最重要的收納櫃體
讓雜亂藏於無形
還有一個地方很有趣的
在走道的盡頭是主臥室房門
房門下方請仔細看
有一組貓咪可以通行的貓門喔
那可是家裡很重要的一份子的專用通道呢

走道上方與展示櫃的90度光帶
對看過去的電視主牆也是90度的空間語彙

書房裡
是屋主一家人的休閒空間

閒暇時
女兒的鋼琴演奏
是一家人最歡樂的時光

實用的機能規劃
讓書籍資料易於收納

女兒房
主題式的空間設計
充分滿足女兒的喜好

充足的光線
可愛的圖案印記
讓整個房間溫馨又有安全感

還有...
吉他
烏克麗麗
心愛的布偶

好像都在說感覺喔
那收納呢?
當然也要用心規劃囉
書桌 書桌邊的隱藏式化妝台 衣櫃
可是一樣也不能少的
希望屋主的女兒在這裡每天都很自在快樂!!

主臥室
我希望可以給屋主一種安定的舒適感
不管是人造光為主營造的氛圍

還是自然光線所帶來的溫度

不用過於華麗的裝點
但是對於細節的作工質感必須講究

像是
主臥電視牆的皮革繃飾
透過人造光線的演繹
將質理完整的呈現出來

或者
10度角的自然光線
也可以帶出不同的折射效果

再來看看更衣室
有限的空間裡設計更衣室通常採光都需要靠人造光源
總讓人覺得陰暗了些
所以我在角落利用一點技巧
引進大量自然光線
即使不開燈
也有足夠的亮度
其實我更喜歡的是陽光照射進來的角度感

主浴室
屋主並不喜歡太過於花俏的設計
但對於材質及設備的質感必須講究
所以選用了德國及日本的衛浴設備
而壁磚採用版岩磚
地磚則採石英質馬賽克磚
淋浴拉門為新式自動導水無框玻璃門

再加上一些人工光源的氣氛營造
讓衛浴間的使用時光也是舒適的生活經驗

***
在這間房子裡
有我和屋主許許多多辛苦努力的記憶
交屋是喜悅的
看見屋主一家人開心 自在的生活在這裡的感覺
一切都值得!
只是當鑰匙交還給屋主的那一刻
卻與這個空間有一股莫名的淡淡離愁
添增幾許不捨的心情
最後
感謝屋主讓我參與打造他們新家的機會
誠摯的祝福他們一家人!!
===========後記===========
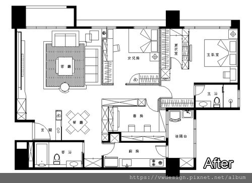
平面配置圖


使用建材
白橡木kd木皮板 白橡木kd木地板 銀狐/灰網/黑金大理石 水刀拼花大理石 裂紋玻璃
烤漆玻璃 茶鏡 無毒合成皮 珪藻土 德國hansgrohe衛浴設備 日本TOTO設備
美國KOHLER設備 日本進口壁紙 除甲醛甲殼素 Bonco類鍍鈦水平把手
![[2024裝修]健康宅裝修完工案例-新店嚴公館 [2024裝修]健康宅裝修完工案例-新店嚴公館](https://pic.pimg.tw/vwdesign/1591586001-2450033735_n.jpg)
![[2024最新裝修重點] 健康宅新趨勢:全熱交換器、防摔地 [2024最新裝修重點] 健康宅新趨勢:全熱交換器、防摔地](https://pic.pimg.tw/vwdesign/1547539054-1849434975_n.jpg?v=1547539769)
![[室內設計作品] 俯瞰幸福的年華宅 [室內設計作品] 俯瞰幸福的年華宅](https://pic.pimg.tw/vwdesign/1581406935-3947331049_n.jpg?v=1581406936)








